Feldner Project Logo
Home Project Vision Features Amenities Building Plans Area Map Contact

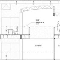
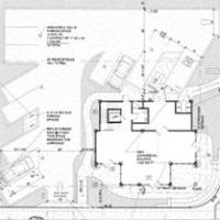
Building Plans

Click on each image to download a full size PDF.

Vision

In short, the vision is to create a building that uses the latest available technology to provide an educational experience in an aesthetically pleasing space. A structure that will stand the test of time in a harsh environment and inspire future generations. To show the beauty that can be achieved through the practical.

Mr. Feldner has been much more than a Realtor and landlord for most of his life. In college, he aspired to be a professor of Industrial Arts. He has always given people well maintained, up to date, and healthy spaces as a positive-quality of life issue. He is an extremely well traveled man and had the good fortune of making the acquaintance of Joseph Eichler and Claude Oakland during the development of the Los Altos area. He is a man who knows the value of quality and is a person who is inwardly driv

Features

  • Carbon-Neutral Concrete
  • Light Colored Concrete
  • Permeable Paving
  • Light Colored Roof
  • Reduced Water Use
  • Light Colored Concrete
  • Lowest Flow Water Fixtures
  • Photovoltaic Panels
  • Charging Station
  • Active Solar Hot Water Collector
  • Optimized Energy Performance
  • Low Wattage Lighting Throughout
  • Minimal Construction Waste
  • High Recycled Content
  • Minimal Maintenance Materials
  • Natural Ventilation
  • Efficient Mechanical Ventilation
  • Low-Emitting Materials
  • Thermal Comfort
  • Dynamic Views

© the feldner project 2011-2024 all rights reserved. Website design Parrish Art & Design.
Website development Vyndyco Corporation